Slik blir den nye flerbrukshallen på Dælenenga
Postet av Alexander Langdale Stebbing den 31. Okt 2020









Nå har arkitekten, Pir II, sendt ut nabovarsel med tegninger av den nye flerbrukshallen på Dælenenga, Grünerløkkas nye storstue.
Flerbrukshallen sett fra syd. Det er planlagt en altan foran hallen som vil fungere som en førsteklasses tribune når en skal følge kampene på banen.
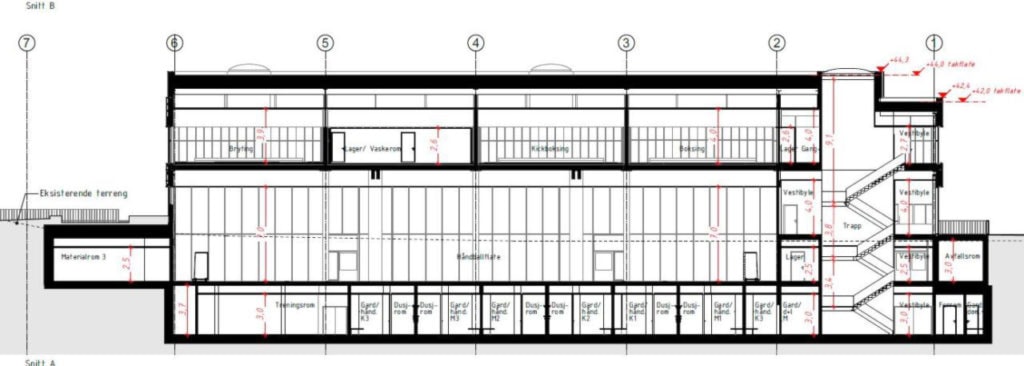
Hallen sett fra Freia-siden. Ishallen til høyre og Grünerløkka skole i bakgrunnen. I tredje etasje på flerbrukshallen blir det kampsportarealer for bryting, boksing og kickboksing. Idrettshallen blir på nivå med fotballbanen og strekker seg over to etasjer. I kjelleren kommer de nye fotballgarderobene. Det blir også kontorerer og møterom for idrettslagene i hallen.
Slik ser hallen ut sett fra porten inn til Dælenenga ved Seilduken barnehage.
Fasaden mot Falsens gate. Hovedinngangen er nede til høyre og fotballbanen i bakgrunnen.
Hovedinngangen til hallen fra Falsensgate. I bakgrunnen skimtes fotballbanen.
Slik vil hallen se ut fra nordsida, fra Schleppegrells gate.
Snitt gjennom bygningen sett fra Falsens gate.
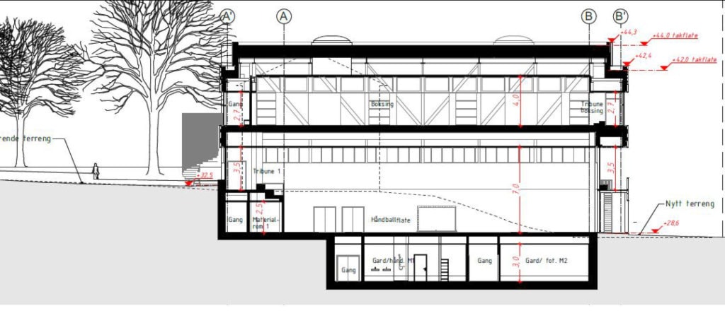
Snitt gjennom bygningen med garderobene nederst og kampsportarealene øverst, fotballbanen til høyre.
Slik blir flerbrukshallen plassert i forhold til fotballbanen og ishallen.
Kommentarer
Logg inn for å skrive en kommentar.